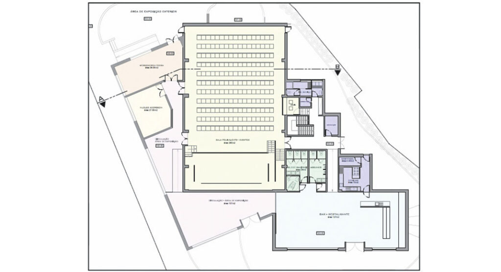
Le Conseil de Faro a reçu le « feu vert » dont il avait besoin de la Cour des comptes pour commencer à construire un centre culturel et d’innovation dans le petit village de Bordeira à Santa Bárbara de Nêxe – à ne pas confondre avec la paroisse de Bordeira à Aljezur.
Les travaux, qui coûteront 1,5 million d’euros et dureront environ 540 jours, devraient commencer prochainement.





